René Damous, Paris

Rénovation d’un studio pour un projet de location

Choisy-le-Roi | 94 France |
Janvier - mars 2024
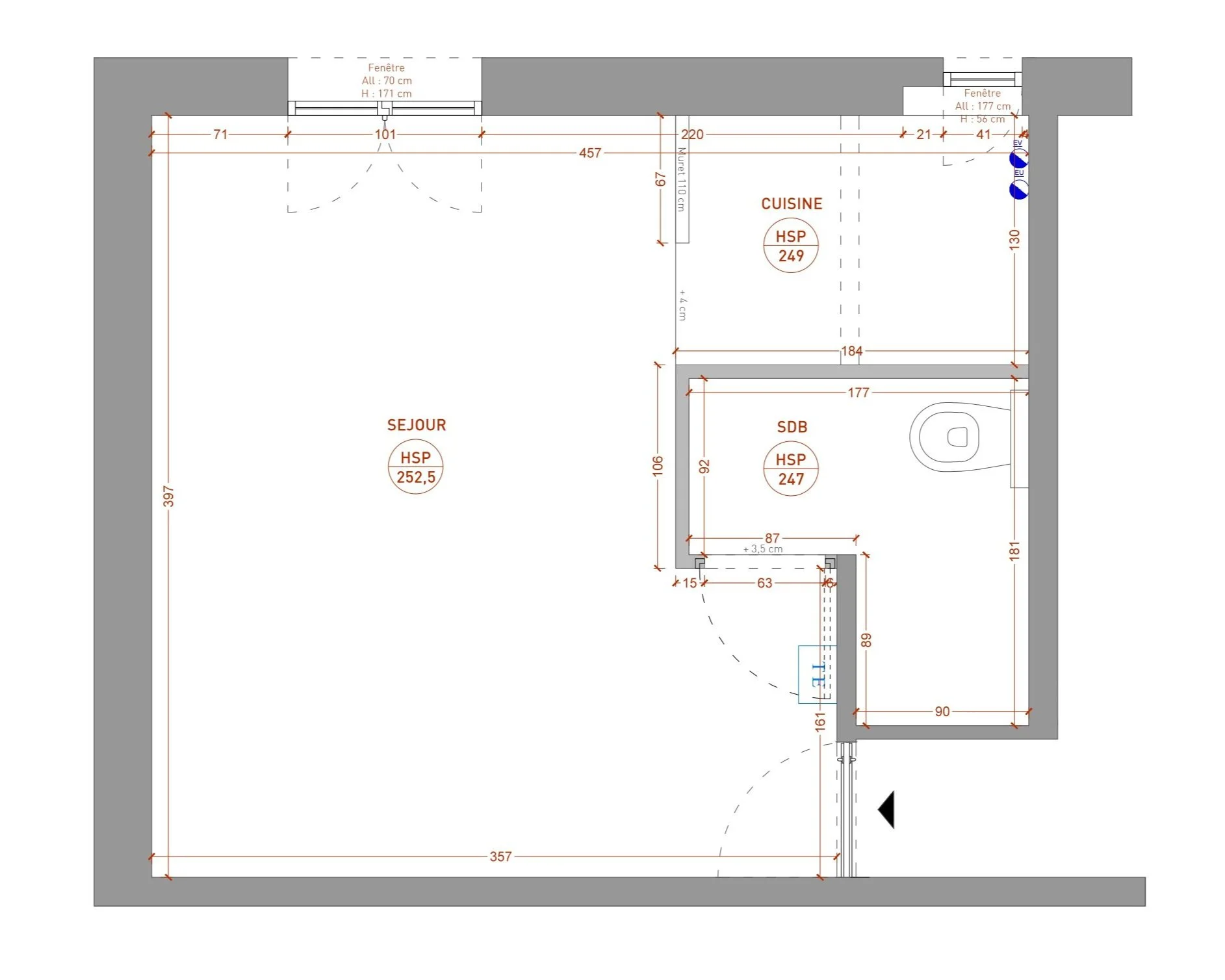
Studio de 17,10 m2 à rénover entièrement avec un coin nuit

Interventions :
Chef de projet, planification, suivi de chantier
Ameublement


Petit studio de 17,10 m2 à Choisy-le-Roi. Le commanditaire souhaitait avoir un projet coloré et original afin de démar- quer le studio pour des locations de courtes durées.

Destiné à des travailleurs en transit, cet espace est polyvalent et agencé pour ne pas avoir d’espace perdu. Le coin nuit est ouvert sur la pièce de vie et isolé grâce à une petite claustra.

Nous avons décidé de partir sur des couleurs pop mêlées avec des rayures dynamiques et d’y ajouter une touche plus douce pastel avec un bleu clair au plafond.

Précédent
Précédent

Raymond Poincaré

Suivant
Suivant

Ferme de Lacamp